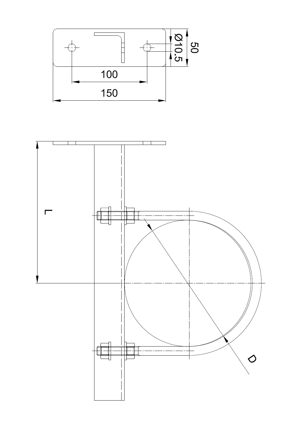
Anforderungsblatt Wandkonsole Dieses Feld wird bei der Anzeige des Formulars ausgeblendetNächste Schritte: Ein E-Mail-Add-on synchronisierenUm das Beste aus deinem Formular herauszuholen, empfehlen wir dir, es mit einem E-Mail-Add-on zu synchronisieren. Um mehr über deine E-Mail-Add-on-Optionen zu erfahren, besuche die folgende Seite (https://www.gravityforms.com/the-8-best-email-plugins-for-wordpress-in-2020/). Wichtig: Lösche diesen Tipp, bevor du das Formular veröffentlichst.Name(erforderlich)Firma(erforderlich)Telefonnummer(erforderlich)E-Mail(erforderlich) V4A (Standard V2A) D (ADm Rohr)L (Baulänge Konsole)